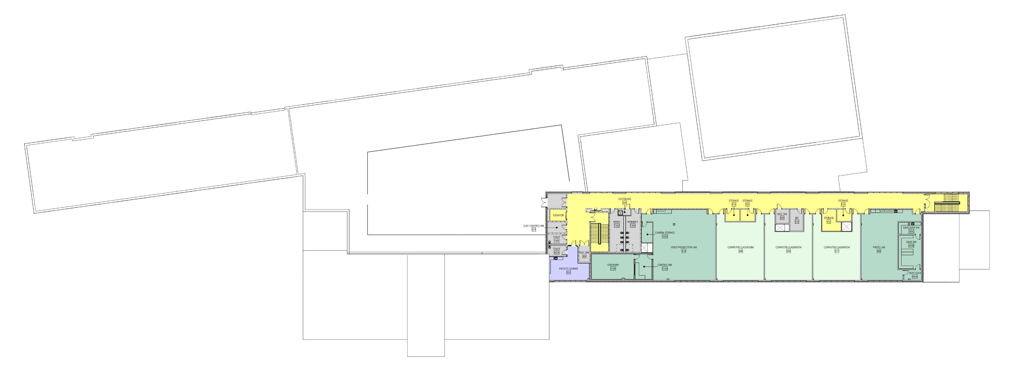
CTE CENTER OPENING

Thank you for visiting our Capital Projects website. The district this year has had numerous capital projects underway and completed. In addition, work continues on our Capital Bond projects as well. Firstly let's explain the difference between Capital Projects and our Capital Bond Project. This page has been designated to keep the public informed on the condition of the HF-L Central School District's buildings and grounds.

Capital Projects
Capital projects are building projects for certain capital outlays and debt service for school buildings housing elementary and/or secondary students. Such projects may include new buildings, the purchase of lands, the development or recondition of fields, and alterations and renovations of facilities. These are usually projects that are outside the scope of our normal annual budget. They may also be emergency projects (ie, roof repair after a leak, etc).

The Capital Bond Projects
The Capital Bond was passed on May 21, 2019 by the NECSD community, but planning for the bond began back in 2016. A Capital Bond is usually a group of Capital Projects combined and then put up to the tax payer for vote. A school district proposes a capital bond to its voters to secure funding for larger construction projects including renovations of spaces, additions, new buildings, and infrastructure repairs such as roofs, boilers and site work. With voter approval, the district then borrows the funds for these projects and then will pay the funds with the district making payments through annual installments over 15-20 years like a homeowner would on their personal residence. This makes the projects affordable to complete.

In conclusion, our Capital Bond Projects are just a collection of Capital Projects that were put up to vote in 2019. This site will cover both Bond Projects and our standard capital projects.


 

CURRENT CAPITAL BOND PROJECTS


Card image cap

NFA
SWIMMING POOL




Current Status: Open and Being Used
100%
Card image cap

NEW CONSTRUCTION
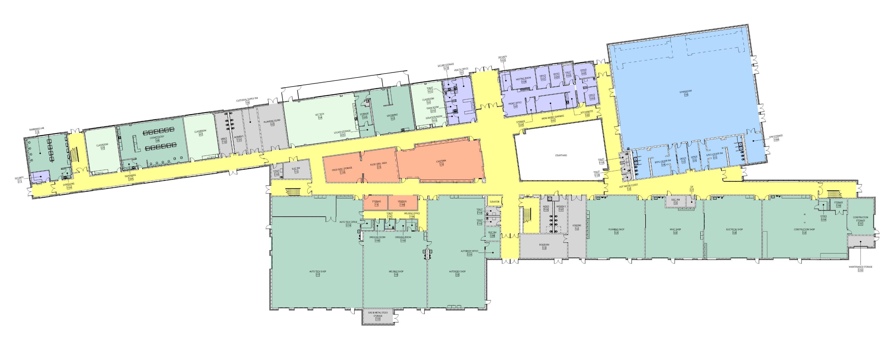
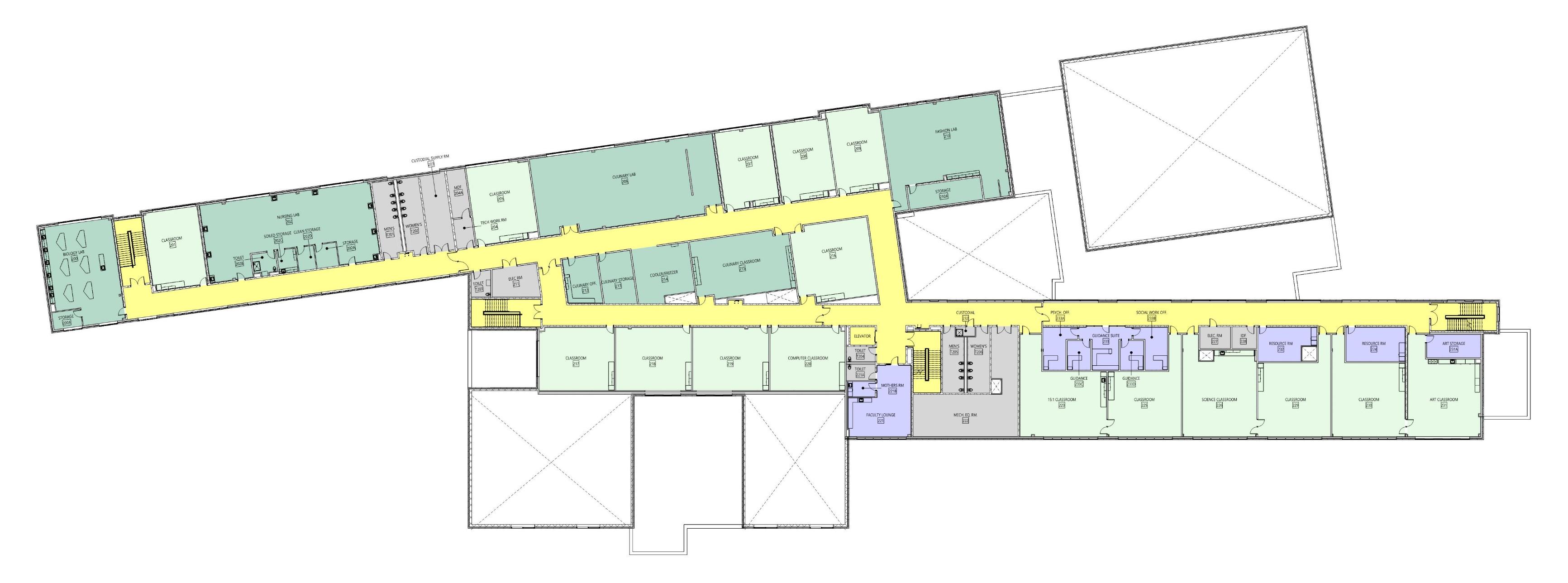
CTE CENTER




Current Status: Construction Phase
60%
Card image cap

VAILS GATE DEMO/ADDITION



Current Status: Complete and being used
100%
Card image cap

HERITAGE MIDDLE SCHOOL
CAFE ADDITION



Current Status: Closeout Phase
97%
Card image cap

NEW WINDSOR SCHOOL
DEMO/ADDITION



Current Status: NYSED Office of Facilities Planning Review and Approval Process/ Pre Bidding Value Engineering/ Estimated Capital Budget Reconciliation
40%%

CURRENT CAPITAL PROJECTS


Card image cap

EMERGENCY NFA
WALKWAY REPLACEMENT



Current Status: Closeout Phase
90%
Card image cap

NFA LOCKER ROOM
RENOVATIONS



Current Status: SED Approval
35%
Card image cap

EMERGENCY NFA ROOF
REPLACEMENT



Current Status: Closeout Phase
90%
Card image cap

HERITAGE MIDDLE SCHOOL
CIRCULATION PROJECT



Current Status: Construction Phase
80%

There are additional projects other than those listed above. Those are currently still in the Preliminary Planning Phase and are listed below. Once they exit that phase they will be included above and include additional information. Check back for the latest updates.




FUTURE CAPITAL BOND PROJECTS


Card image cap

BALMVILLE RENOVATIONS

Scheduled Start Date: Prelimanary Design Phase Begun August 2020
Card image cap

GARDNERTOWN DESIGN

Scheduled Start Date: Prelimanary Design Phase Begun August 2020
Card image cap

GIDNEY AVENUE RENOVATIONS

Scheduled Start Date: Prelimanary Design Phase Begun August 2020
Card image cap

SOUTH MIDDLE SCHOOL RENOVATIONS

Scheduled Start Date: Design Phase Begins Q1 - 2022
Card image cap

NFA MAIN RENOVATIONS

Scheduled Start Date: Design Phase Begins March 2023
Card image cap

TEMPLE HILL ACADEMY RENOVATIONS

Scheduled Start Date: Design Phase Begins July 2024
Card image cap

MEADOW HILL RENOVATIONS

Scheduled Start Date: Design Phase Begins July 2024
Card image cap

NFA WEST RENOVATIONS

Scheduled Start Date: Design Phase Begins December 2024
Card image cap

FOSTERTOWN RENOVATIONS

Scheduled Start Date: Design Phase Begins September 2025
Card image cap

HORIZONS RENOVATIONS

Scheduled Start Date: Design Phase Begins September 2025
Card image cap

NFA NORTH RENOVATIONS

Scheduled Start Date: Design Phase Begins February 2026
Capital Bond Presentations

Each month the district provides updates on the Capital Bond Project to the Board of Education. The list of these presentations are below. Some information in the older presentations may have changed since being presented.


Copyright 2021 - Newburgh Enlarged City School District